Home > Passive vibration isolation solution > Air Spring Isolator > SLM Series Air Spring Isolator
SLM-A/B Air Spring Isolator
-
SLM-A/B Air Spring Isolator Overview -
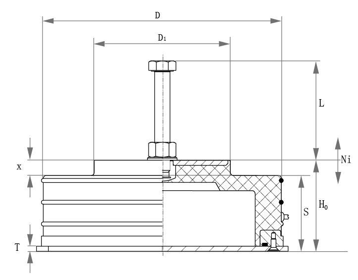
Structure:Elastomer-metal combination with screwablebase plate, gas chamber made of elastomericmaterial, reinforced with steel rings, 10 sizes.
Applicable Fields:Measuring machines, flat workbenches,equipment foundations, presses, automaticshearing machines, occlusion machines,compressors, fans, air conditioners, etc
-
SLM-A/B Air Spring Isolator Advantage +
-
SLM-A/B Air Spring Isolator Performance +
-
SLM-A/B Air Spring Isolator Specifications +

Chinese
English.jpg)










Top